Rosmalen

Hintham 66B

  • Vraagprijs:€ 350.000 k.k.

Omschrijving

Aanschouw dit instapklare tweekamerappartement mét eigen tuin, vrijstaande berging, achterom én dubbele parkeerplaats. Een zeldzame combinatie op een toplocatie nabij uitvalswegen en dichtbij het treinstation ! Deze stijlvolle benedenwoning is gelegen aan de Hintham, op korte afstand van het bruisende centrum van ’s-Hertogenbosch, diverse uitvalswegen en alle denkbare voorzieningen. Hier woon je rustig, maar met alles binnen handbereik. In 2024/2025 is het appartement volledig vernieuwd en met oog voor detail afgewerkt. Het resultaat? Een modern en sfeervol thuis waar je zó in kunt trekken. Dankzij de ligging aan de achterzijde van het complex geniet je hier van optimale rust en privacy, zowel binnen als in de tuin.

En misschien wel het grootste comfort: je stapt hier zonder trap of lift direct je woning binnen. Welkom!
De strak afgewerkte hal vormt een stijlvolle binnenkomer en zet direct de toon. De gehele woning is voorzien van moderne schuurwerk plafonds, strak afgewerkte spachtelputz wanden en een warme eiken parketvloer. Vanuit de hal heb je toegang tot de toiletruimte en een praktische wasruimte.

Aan het einde van de hal bevindt zich de open keuken (2024), een echte eyecatcher. Deze is uitgerust met hoogwaardige inbouwapparatuur, waaronder een inductiekookplaat met geïntegreerde afzuiging, combimagnetron, vaatwasser en een koelkast met vriesvak. Met volop kastruimte en een ruim werkblad is dit dé plek voor kookliefhebbers. De open verbinding naar de woonkamer zorgt voor een ruimtelijk geheel. Grote raampartijen aan meerdere zijden en openslaande deuren naar de tuin zorgen voor een prachtige lichtinval en een fijne connectie met buiten.

De slaapkamer is rustig gelegen en biedt een comfortabele plek om te ontspannen De slaapkamer beschikt over een ruime vaste kledingkast. Aangrenzend vind je de moderne badkamer, uitgevoerd in een lichte en tijdloze kleurstelling, voorzien van een inloopdouche met regen- en handdouche en een stijlvol wastafelmeubel met waskom.

De absolute blikvanger? De eigen, volledig omsloten tuin. Een heerlijke buitenruimte waar je in alle rust kunt genieten van je ochtendkoffie, een zonnige middag of een lange zomeravond. Hier ervaar je het gevoel van een huis, met het gemak van een appartement.

Bijzonderheden:
– Instapklaar tweekamerappartement, volledig vernieuwd in 2024/2025
– Gelegen op een rustige plek aan de achterzijde van het complex
– Eigen, volledig omsloten tuin met veel privacy
– Dubbele parkeerplaats én vrijstaande berging
– Moderne open keuken (2024) met inbouwapparatuur en strak design
– Lichte woonkamer met raampartijen aan meerdere zijden en openslaande deuren
– Hoogwaardige afwerking met eiken parketvloer, schuurwerk plafonds en strakke wanden
– Comfortabel wonen zonder trap of lift (gelijkvloers)
– Moderne badkamer met inloopdouche en stijlvol wastafelmeubel
– Toplocatie nabij centrum ’s-Hertogenbosch, uitvalswegen en treinstation
– Servicekosten bedragen € 101,- per maand

Locatie:
– Gelegen op een toplocatie nabij centrum ‘s-Hertogenbosch, uitvalswegen en treinstation
– Rosmalen maakt deel uit van de gemeente ’s-Hertogenbosch
– Rosmalen heeft 10 basisscholen en 1 school voor speciaal onderwijs
– Daarnaast is er ook nog het Rodenborch-College, een middelbare school voor VMBO-T, Havo, Vwo en Vwo-plus
– Rosmalen beschikt over een compleet gezondheidscentrum
– Er is een uitgebreid winkelcentrum aanwezig en buurtwinkels
– Rosmalen ligt vrij centraal en heeft een eigen toegangsweg naar de A2 en twee toegangswegen naar de A59

Kenmerken

  • Vraagprijs: € 350.000 k.k.
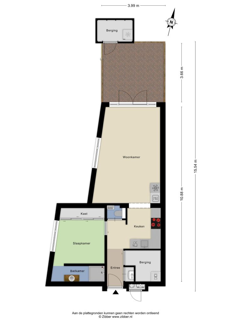
  • Woonoppervlakte: 55 m2
  • Inhoud: 182 m3

Plattegrond (7)

Video

Kenmerken

Overdracht

  • Vraagprijs: € 350.000 k.k.
  • Woonoppervlakte: 55 m2
  • Inhoud: 182 m3
  • Status: Te koop

Bouw

  • Ligging: In woonwijk, , ,
  • Kamers: 2
  • Slaapkamers: 1
  • Energielabel: A

Omschrijving

Aanschouw dit instapklare tweekamerappartement mét eigen tuin, vrijstaande berging, achterom én dubbele parkeerplaats. Een zeldzame combinatie op een toplocatie nabij uitvalswegen en dichtbij het treinstation ! Deze stijlvolle benedenwoning is gelegen aan de Hintham, op korte afstand van het bruisende centrum van ’s-Hertogenbosch, diverse uitvalswegen en alle denkbare voorzieningen. Hier woon je rustig, maar met alles binnen handbereik. In 2024/2025 is het appartement volledig vernieuwd en met oog voor detail afgewerkt. Het resultaat? Een modern en sfeervol thuis waar je zó in kunt trekken. Dankzij de ligging aan de achterzijde van het complex geniet je hier van optimale rust en privacy, zowel binnen als in de tuin.

En misschien wel het grootste comfort: je stapt hier zonder trap of lift direct je woning binnen. Welkom!
De strak afgewerkte hal vormt een stijlvolle binnenkomer en zet direct de toon. De gehele woning is voorzien van moderne schuurwerk plafonds, strak afgewerkte spachtelputz wanden en een warme eiken parketvloer. Vanuit de hal heb je toegang tot de toiletruimte en een praktische wasruimte.

Aan het einde van de hal bevindt zich de open keuken (2024), een echte eyecatcher. Deze is uitgerust met hoogwaardige inbouwapparatuur, waaronder een inductiekookplaat met geïntegreerde afzuiging, combimagnetron, vaatwasser en een koelkast met vriesvak. Met volop kastruimte en een ruim werkblad is dit dé plek voor kookliefhebbers. De open verbinding naar de woonkamer zorgt voor een ruimtelijk geheel. Grote raampartijen aan meerdere zijden en openslaande deuren naar de tuin zorgen voor een prachtige lichtinval en een fijne connectie met buiten.

De slaapkamer is rustig gelegen en biedt een comfortabele plek om te ontspannen De slaapkamer beschikt over een ruime vaste kledingkast. Aangrenzend vind je de moderne badkamer, uitgevoerd in een lichte en tijdloze kleurstelling, voorzien van een inloopdouche met regen- en handdouche en een stijlvol wastafelmeubel met waskom.

De absolute blikvanger? De eigen, volledig omsloten tuin. Een heerlijke buitenruimte waar je in alle rust kunt genieten van je ochtendkoffie, een zonnige middag of een lange zomeravond. Hier ervaar je het gevoel van een huis, met het gemak van een appartement.

Bijzonderheden:
– Instapklaar tweekamerappartement, volledig vernieuwd in 2024/2025
– Gelegen op een rustige plek aan de achterzijde van het complex
– Eigen, volledig omsloten tuin met veel privacy
– Dubbele parkeerplaats én vrijstaande berging
– Moderne open keuken (2024) met inbouwapparatuur en strak design
– Lichte woonkamer met raampartijen aan meerdere zijden en openslaande deuren
– Hoogwaardige afwerking met eiken parketvloer, schuurwerk plafonds en strakke wanden
– Comfortabel wonen zonder trap of lift (gelijkvloers)
– Moderne badkamer met inloopdouche en stijlvol wastafelmeubel
– Toplocatie nabij centrum ’s-Hertogenbosch, uitvalswegen en treinstation
– Servicekosten bedragen € 101,- per maand

Locatie:
– Gelegen op een toplocatie nabij centrum ‘s-Hertogenbosch, uitvalswegen en treinstation
– Rosmalen maakt deel uit van de gemeente ’s-Hertogenbosch
– Rosmalen heeft 10 basisscholen en 1 school voor speciaal onderwijs
– Daarnaast is er ook nog het Rodenborch-College, een middelbare school voor VMBO-T, Havo, Vwo en Vwo-plus
– Rosmalen beschikt over een compleet gezondheidscentrum
– Er is een uitgebreid winkelcentrum aanwezig en buurtwinkels
– Rosmalen ligt vrij centraal en heeft een eigen toegangsweg naar de A2 en twee toegangswegen naar de A59

Plattegrond

Video

Documenten

Selecteer onderstaande documenten om ze te downloaden

Neem contact met ons op

Wij staan telefonisch, per e-mail en per WhatsApp voor je klaar.

  • Dit veld is bedoeld voor validatiedoeleinden en moet niet worden gewijzigd.
  • Door het formulier te gebruiken ga je akkoord met de verwerking van je persoonsgegevens volgens onze privacyverklaring

Blijf op de hoogte van nieuwe woningen

Vrijblijvende waardebepaling

Heeft u verhuisplannen en wilt u graag de (over)waarde van uw woning weten?
Nodig Akker Makelaardij uit voor een gratis waardebepaling.

Meer informatie