Heesch

't Dorp 94

  • Huurprijs:€ 1.600 p.m.
Onder optie

Omschrijving

Het appartement is onderdeel van de gerenoveerde burgemeesterswoning, bekend als pand Wolters, in het hart van het centrum van Heesch. Het appartement ligt op loopafstand van winkels, horeca, scholen, sportcentra, het Cultureel Centrum De Pas en diverse gezellige pleinen. Het karakteristieke pand Wolters bestaat uit 3 verdiepingen. Op de begane grond is het restaurant Wolters gevestigd.

Het appartement ligt op de 1e en 2e verdieping en beschikt over een eigen entree naast het restaurant met een trapopgang naar de eerste verdieping waar ook een studio is gevestigd. Het appartement beschikt over een woonkeuken, een ruime woonkamer, twee slaapkamers, een doucheruimte, een toiletruimte, een cv-ruimte in de berging en een loggia op de 2e verdieping. De keuken is voorzien van een ingebouwde koel-/vrieskast, elektrische kookplaat, vaatwasser en combi oven/magnetron. Het appartement is in 2013 geheel gerenoveerd en aangepast aan alle moderne bouwvoorschriften. Twee grote draai-kantelramen kijken uit op het centrum van het dorp, de loggia / balkon van 10 m2 ligt op de 2e verdieping aan de achterzijde.

Tijdens deze mutatie in 2025 zal het appartement weer geüpgraded worden met wat aanpassingen aan de keuken, badkamer en andere zaken om het nog mooier te maken.

Indien u geïnteresseerd bent, verzoeken wij u uw interesse per email kenbaar te maken. U ontvangt van ons documenten om in te vullen. Na ontvangst van deze ingevulde documenten en na een positieve huurcheck, komt u eventueel in aanmerking voor een bezichtiging van de woning. Indien u in aanmerking komt voor een bezichtiging, zullen wij contact met u opnemen om een afspraak in te plannen !

Kenmerken

  • Huur Huurprijs: € 1.600 p.m.
  • Woonoppervlakte: 126 m2
  • Inhoud: 330 m3

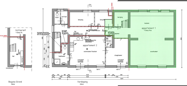
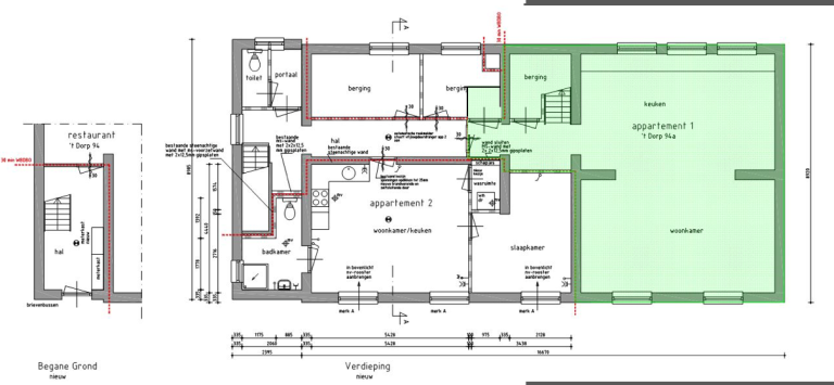
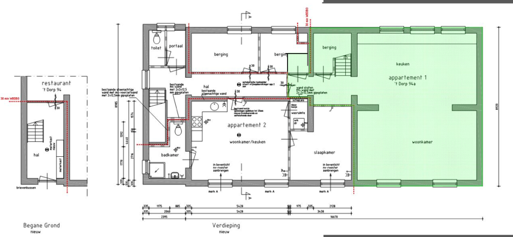
Plattegrond (2)

Kenmerken

Overdracht

  • Huur Huurprijs: € 1.600 p.m.
  • Woonoppervlakte: 126 m2
  • Inhoud: 330 m3
  • Status: Onder optie

Bouw

  • Ligging: In centrum, , ,
  • Kamers: 3
  • Slaapkamers: 2

Omschrijving

Het appartement is onderdeel van de gerenoveerde burgemeesterswoning, bekend als pand Wolters, in het hart van het centrum van Heesch. Het appartement ligt op loopafstand van winkels, horeca, scholen, sportcentra, het Cultureel Centrum De Pas en diverse gezellige pleinen. Het karakteristieke pand Wolters bestaat uit 3 verdiepingen. Op de begane grond is het restaurant Wolters gevestigd.

Het appartement ligt op de 1e en 2e verdieping en beschikt over een eigen entree naast het restaurant met een trapopgang naar de eerste verdieping waar ook een studio is gevestigd. Het appartement beschikt over een woonkeuken, een ruime woonkamer, twee slaapkamers, een doucheruimte, een toiletruimte, een cv-ruimte in de berging en een loggia op de 2e verdieping. De keuken is voorzien van een ingebouwde koel-/vrieskast, elektrische kookplaat, vaatwasser en combi oven/magnetron. Het appartement is in 2013 geheel gerenoveerd en aangepast aan alle moderne bouwvoorschriften. Twee grote draai-kantelramen kijken uit op het centrum van het dorp, de loggia / balkon van 10 m2 ligt op de 2e verdieping aan de achterzijde.

Tijdens deze mutatie in 2025 zal het appartement weer geüpgraded worden met wat aanpassingen aan de keuken, badkamer en andere zaken om het nog mooier te maken.

Indien u geïnteresseerd bent, verzoeken wij u uw interesse per email kenbaar te maken. U ontvangt van ons documenten om in te vullen. Na ontvangst van deze ingevulde documenten en na een positieve huurcheck, komt u eventueel in aanmerking voor een bezichtiging van de woning. Indien u in aanmerking komt voor een bezichtiging, zullen wij contact met u opnemen om een afspraak in te plannen !

Plattegrond

Documenten

Selecteer onderstaande documenten om ze te downloaden

Neem contact met ons op

Wij staan telefonisch, per e-mail en per WhatsApp voor je klaar.

  • Dit veld is bedoeld voor validatiedoeleinden en moet niet worden gewijzigd.
  • Door het formulier te gebruiken ga je akkoord met de verwerking van je persoonsgegevens volgens onze privacyverklaring

Blijf op de hoogte van nieuwe woningen

Vrijblijvende waardebepaling

Heeft u verhuisplannen en wilt u graag de (over)waarde van uw woning weten?
Nodig Akker Makelaardij uit voor een gratis waardebepaling.

Meer informatie