Verkocht onder voorbehoud

Omschrijving

Comfortabel, duurzaam en stijlvol wonen in het hart van Heesch
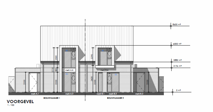
Ben je op zoek naar een toekomstbestendige woning waar comfort, stijl en duurzaamheid perfect samenkomen? Dan is deze splinternieuwe twee-onder-één-kapwoning (bouwjaar 2026) precies wat je zoekt. Gelegen op een toplocatie in het bruisende centrum van Heesch, heb je hier werkelijk alles binnen handbereik, van winkels en restaurants tot zorgvoorzieningen en openbaar vervoer.

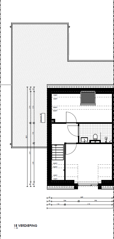
Zodra je binnenkomt, valt meteen de fijne lichtinval en ruimtelijke indeling op. De royale woonkamer met openslaande tuindeuren vormt samen met de mogelijkheid voor een open keuken een heerlijke leefruimte waar je kunt ontspannen, koken en genieten. Dankzij de slimme indeling is de woning bovendien volledig levensloopbestendig: op de begane grond vind je een ruime slaapkamer en de mogelijkheid voor een luxe badkamer met inloopdouche, dubbele wastafel en toilet. Aangrenzend bevindt zich een praktische bijkeuken, ideaal voor het witgoed en extra bergruimte. Alles is ontworpen met oog voor gemak en comfort. Op de eerste verdieping gaat het woongenot gewoon verder. Hier vind je een tweede, riante slaapkamer, de mogelijkheid voor een tweede complete badkamer én een royale bergruimte die je naar wens kunt inrichten – bijvoorbeeld als werkplek, hobbyruimte of logeerkamer.

Ook op het gebied van duurzaamheid scoort deze woning bijzonder hoog. Dankzij de volledige isolatie, vloerverwarming door de hele woning, zonnepanelen en een energiezuinige warmtepomp ben je verzekerd van een comfortabel binnenklimaat en lage energiekosten.

Buiten is er bovendien een handige berging, ideaal voor fietsen, tuinspullen of extra opslag.

Kortom: een moderne, instapklare woning op een toplocatie, klaar voor de toekomst én voor jou.

Benieuwd of dit jouw nieuwe thuis is? Neem gerust contact op. Deze kans wil je niet laten lopen!

Inschrijving vanaf € 695.000,- V.O.N. tot uiterlijk 31 oktober 2025 09.00 uur

Bijzonderheden:
– Splinternieuwe levensloopbestendige twee-onder-één kapwoning (2026)
– Met vrijstaande berging
– Royale woonkamer met openslaande tuindeuren
– Open, moderne keuken
– Een ruime slaapkamer en badkamer op de begane grond
– Praktische bijkeuken met ruimte voor het witgoed
– Riante slaapkamer op de eerste verdieping
– Tweede badkamer met inloopdouche, wastafel en toilet op de verdieping
– Ruime bergruimte op de verdieping
– Volledig geïsoleerd, met HR ++ beglazing
– Voorzien van zonnepanelen en luchtwarmtepomp
– Gehele woning is voorzien van vloerverwarming
– Woning word casco opgeleverd
– Aansluitpunten elektra aanwezig
– Aansluitpunten sanitair aanwezig
– Aansluitpunten keuken aanwezig
– Geen sanitair en geen keuken
– Geen vloerafwerkingen
– Wanden, plafonds saus- & behangklaar opgeleverd
– Binnenkozijnen, excl. binnendeuren

Locatie:
– Gelegen in het bruisende centrum van Heesch met alle voorzieningen binnen handbereik
– Heesch is één van de zes kernen van de gemeente Bernheze
– Heesch heeft het gemoedelijke karakter van een dorp, maar alle voorzieningen van een stad
– Voorzieningen zoals meerdere basisscholen, bakkers, slagers, bank, drogist, huisartsenpraktijk, apotheek en diverse supermarkten, kledingzaken en restaurants
– De verbindingen zijn uitermate goed, binnen enkele minuten bent u op de snelwegen A50 en A59
– De busverbindingen zijn ook goed, en op fietsafstand van het NS-station in Oss
– Aan de oostkant van Heesch bereikt u een bosrijke omgeving met natuurgebied “De Maashorst”
– Heesch heeft een rijk verenigingsleven op het gebied van sport, cultuur en recreatie

Kenmerken

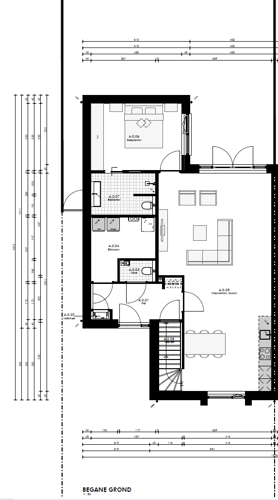
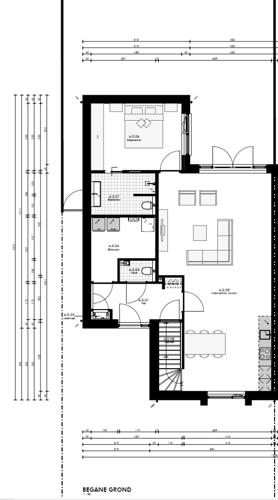
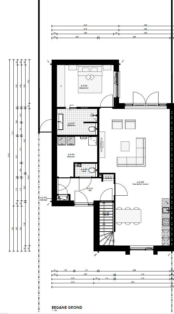
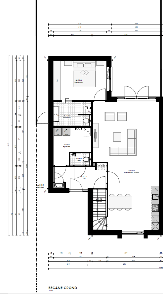
  • Woonoppervlakte: 121 m2
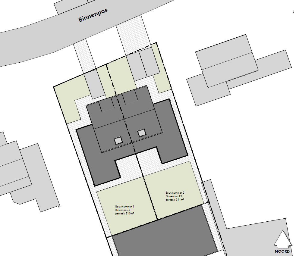
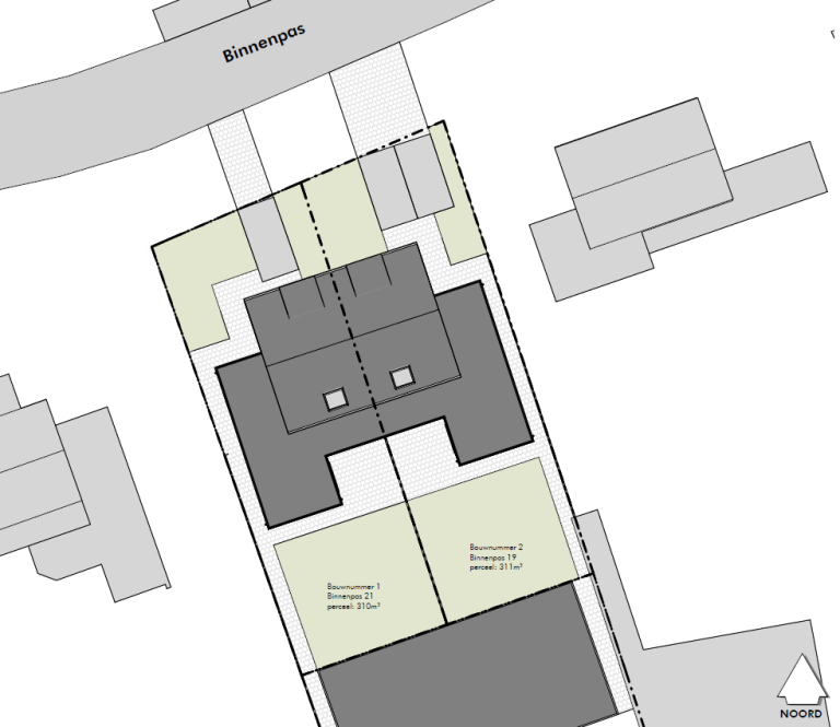
  • Perceeloppervlakte: 311 m2
  • Inhoud: 515 m3

Plattegrond (7)

Kenmerken

Overdracht

  • Woonoppervlakte: 121 m2
  • Perceeloppervlakte: 311 m2
  • Inhoud: 515 m3
  • Status: Verkocht onder voorbehoud

Bouw

  • Ligging: In centrum, , ,
  • Kamers: 3
  • Slaapkamers: 2
  • Energielabel: A+++

Omschrijving

Comfortabel, duurzaam en stijlvol wonen in het hart van Heesch
Ben je op zoek naar een toekomstbestendige woning waar comfort, stijl en duurzaamheid perfect samenkomen? Dan is deze splinternieuwe twee-onder-één-kapwoning (bouwjaar 2026) precies wat je zoekt. Gelegen op een toplocatie in het bruisende centrum van Heesch, heb je hier werkelijk alles binnen handbereik, van winkels en restaurants tot zorgvoorzieningen en openbaar vervoer.

Zodra je binnenkomt, valt meteen de fijne lichtinval en ruimtelijke indeling op. De royale woonkamer met openslaande tuindeuren vormt samen met de mogelijkheid voor een open keuken een heerlijke leefruimte waar je kunt ontspannen, koken en genieten. Dankzij de slimme indeling is de woning bovendien volledig levensloopbestendig: op de begane grond vind je een ruime slaapkamer en de mogelijkheid voor een luxe badkamer met inloopdouche, dubbele wastafel en toilet. Aangrenzend bevindt zich een praktische bijkeuken, ideaal voor het witgoed en extra bergruimte. Alles is ontworpen met oog voor gemak en comfort. Op de eerste verdieping gaat het woongenot gewoon verder. Hier vind je een tweede, riante slaapkamer, de mogelijkheid voor een tweede complete badkamer én een royale bergruimte die je naar wens kunt inrichten – bijvoorbeeld als werkplek, hobbyruimte of logeerkamer.

Ook op het gebied van duurzaamheid scoort deze woning bijzonder hoog. Dankzij de volledige isolatie, vloerverwarming door de hele woning, zonnepanelen en een energiezuinige warmtepomp ben je verzekerd van een comfortabel binnenklimaat en lage energiekosten.

Buiten is er bovendien een handige berging, ideaal voor fietsen, tuinspullen of extra opslag.

Kortom: een moderne, instapklare woning op een toplocatie, klaar voor de toekomst én voor jou.

Benieuwd of dit jouw nieuwe thuis is? Neem gerust contact op. Deze kans wil je niet laten lopen!

Inschrijving vanaf € 695.000,- V.O.N. tot uiterlijk 31 oktober 2025 09.00 uur

Bijzonderheden:
– Splinternieuwe levensloopbestendige twee-onder-één kapwoning (2026)
– Met vrijstaande berging
– Royale woonkamer met openslaande tuindeuren
– Open, moderne keuken
– Een ruime slaapkamer en badkamer op de begane grond
– Praktische bijkeuken met ruimte voor het witgoed
– Riante slaapkamer op de eerste verdieping
– Tweede badkamer met inloopdouche, wastafel en toilet op de verdieping
– Ruime bergruimte op de verdieping
– Volledig geïsoleerd, met HR ++ beglazing
– Voorzien van zonnepanelen en luchtwarmtepomp
– Gehele woning is voorzien van vloerverwarming
– Woning word casco opgeleverd
– Aansluitpunten elektra aanwezig
– Aansluitpunten sanitair aanwezig
– Aansluitpunten keuken aanwezig
– Geen sanitair en geen keuken
– Geen vloerafwerkingen
– Wanden, plafonds saus- & behangklaar opgeleverd
– Binnenkozijnen, excl. binnendeuren

Locatie:
– Gelegen in het bruisende centrum van Heesch met alle voorzieningen binnen handbereik
– Heesch is één van de zes kernen van de gemeente Bernheze
– Heesch heeft het gemoedelijke karakter van een dorp, maar alle voorzieningen van een stad
– Voorzieningen zoals meerdere basisscholen, bakkers, slagers, bank, drogist, huisartsenpraktijk, apotheek en diverse supermarkten, kledingzaken en restaurants
– De verbindingen zijn uitermate goed, binnen enkele minuten bent u op de snelwegen A50 en A59
– De busverbindingen zijn ook goed, en op fietsafstand van het NS-station in Oss
– Aan de oostkant van Heesch bereikt u een bosrijke omgeving met natuurgebied “De Maashorst”
– Heesch heeft een rijk verenigingsleven op het gebied van sport, cultuur en recreatie

Plattegrond

Documenten

Selecteer onderstaande documenten om ze te downloaden

Neem contact met ons op

Wij staan telefonisch, per e-mail en per WhatsApp voor je klaar.

  • Dit veld is bedoeld voor validatiedoeleinden en moet niet worden gewijzigd.
  • Door het formulier te gebruiken ga je akkoord met de verwerking van je persoonsgegevens volgens onze privacyverklaring

Blijf op de hoogte van nieuwe woningen

Vrijblijvende waardebepaling

Heeft u verhuisplannen en wilt u graag de (over)waarde van uw woning weten?
Nodig Akker Makelaardij uit voor een gratis waardebepaling.

Meer informatie