Oss

Goudplevier 76

    Omschrijving

    Stelt u zich een plek voor waar u thuiskomt in alle rust, een rustige woonwijk waar vogels u ’s ochtends nog fluitend begroeten. Precies daar, op korte afstand van scholen, winkels en uitvalswegen, staat deze royale twee-onder-een-kapwoning met aangebouwde grote garage. Een fijne gezinswoning waar jaren met zorg en aandacht is gewoond, maar die klaarstaat voor een nieuwe eigenaar die de woning wil moderniseren en volledig naar eigen smaak wil maken.

    Wanneer u binnenstapt, ontvangt de ruime hal u met een praktische garderobe en het toilet. Vanuit hier loopt u door naar de woonkamer met open keuken. De woonkamer is een prettige plek om te ontspannen, mede dankzij het rustige uitzicht. De keuken is voorzien van een licht keukenmeubel en beschikt over een 4-pits gaskookplaat, oven, afzuigkap en koel-/vriescombinatie, degelijk en functioneel met mogelijkheden voor vernieuwing.

    Grenzend aan de keuken bevindt zich de wasruimte/bijkeuken, waar u beschikt over de witgoedaansluitingen en extra opbergruimte.

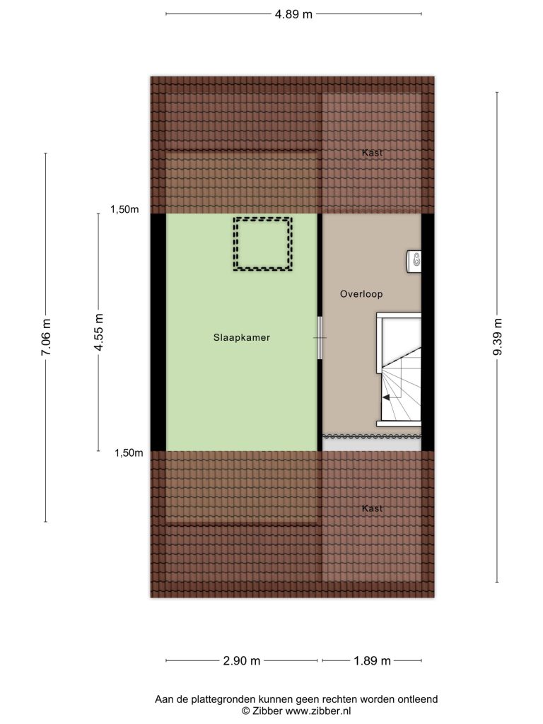
    Op de eerste verdieping treft u drie ruime slaapkamers en de badkamer met ligbad, toilet en wastafel. De tweede verdieping biedt een voorzolder met cv-opstelling en bergruimte, plus een extra slaapkamer welke ideaal is als werkplek, hobbykamer of logeerplek.

    Buiten is het minstens zo fijn. De royale achtertuin op het westen laat u vanaf de middag tot in de avond genieten van de zon. Met een terras, plantenborders en gras is dit een heerlijke plek voor spelende kinderen, tuinliefhebbers of rustige zomeravonden. De tuin is geheel omsloten en bereikbaar via een achterom, wat privacy én gemak biedt.

    De grote, verwarmde garage met elektrische deur maakt het plaatje compleet. Hier is volop ruimte voor de auto, klusprojecten of extra opslag.

    Kortom: een royale woning op een bijzonder rustige locatie, met alle dagelijkse voorzieningen vlakbij én met alle potentie om te worden omgetoverd tot een modern thuis dat volledig past bij uw wensen.

    Bijzonderheden:
    – Royale twee-onder-een-kapwoning met aangebouwde grote garage en berging
    – Altijd met zeer veel zorg gewoond, maar een moderniseringsupdate is wenselijk
    – Gezellige woonkamer met open keuken
    – Keuken met licht keukenmeubel en 4-pits gaskookplaat, oven, afzuigkap en koel-/vriescombinatie
    – Wasruimte/bijkeuken met aansluitingen witgoed
    – Drie slaapkamers op de eerste verdieping
    – Badkamer met ligbad, toilet en wastafel
    – Slaapkamer op de tweede verdieping
    – Grote garage met elektrische deur, elektra en verwarming
    – Royale achtertuin op het westen met terras, plantenborders en gras

    Locatie:
    – Gelegen in een rustige woonwijk op korte afstand van scholen, winkels en uitvalswegen
    – Oss is een middelgrote stad
    – De stad heeft een rijk verenigingsleven en moderne sportaccommodaties
    – In Oss vindt u alles wat hoort bij een middelgrote stad: bioscoop, theater, basisscholen, voortgezet onderwijs, winkelcentra etc.
    – Voor het openbaar vervoer kunt u gebruik maken van busverbindingen of een van de twee NS-stations
    – Op korte afstand van snelwegen, met een goede verbinding naar Eindhoven, ’s-Hertogenbosch en Nijmegen
    – Op het gebied van cultuur biedt Oss een zeer royaal aanbod met theater “De Lievekamp”, cultuurpodium “De Groene Engel” en het Centrum voor Kunsten Muzelinck
    – Ook diverse festivals en evenementen maken Oss tot een zeer plezierige stad om te wonen

    Kenmerken

    • Woonoppervlakte: 133 m2
    • Perceeloppervlakte: 258 m2
    • Inhoud: 542 m3

    Plattegrond (11)

    Kenmerken

    Overdracht

    • Woonoppervlakte: 133 m2
    • Perceeloppervlakte: 258 m2
    • Inhoud: 542 m3
    • Status: Verkocht

    Bouw

    • Ligging: Aan rustige weg, In woonwijk, ,
    • Kamers: 5
    • Slaapkamers: 4
    • Energielabel: D

    Omschrijving

    Stelt u zich een plek voor waar u thuiskomt in alle rust, een rustige woonwijk waar vogels u ’s ochtends nog fluitend begroeten. Precies daar, op korte afstand van scholen, winkels en uitvalswegen, staat deze royale twee-onder-een-kapwoning met aangebouwde grote garage. Een fijne gezinswoning waar jaren met zorg en aandacht is gewoond, maar die klaarstaat voor een nieuwe eigenaar die de woning wil moderniseren en volledig naar eigen smaak wil maken.

    Wanneer u binnenstapt, ontvangt de ruime hal u met een praktische garderobe en het toilet. Vanuit hier loopt u door naar de woonkamer met open keuken. De woonkamer is een prettige plek om te ontspannen, mede dankzij het rustige uitzicht. De keuken is voorzien van een licht keukenmeubel en beschikt over een 4-pits gaskookplaat, oven, afzuigkap en koel-/vriescombinatie, degelijk en functioneel met mogelijkheden voor vernieuwing.

    Grenzend aan de keuken bevindt zich de wasruimte/bijkeuken, waar u beschikt over de witgoedaansluitingen en extra opbergruimte.

    Op de eerste verdieping treft u drie ruime slaapkamers en de badkamer met ligbad, toilet en wastafel. De tweede verdieping biedt een voorzolder met cv-opstelling en bergruimte, plus een extra slaapkamer welke ideaal is als werkplek, hobbykamer of logeerplek.

    Buiten is het minstens zo fijn. De royale achtertuin op het westen laat u vanaf de middag tot in de avond genieten van de zon. Met een terras, plantenborders en gras is dit een heerlijke plek voor spelende kinderen, tuinliefhebbers of rustige zomeravonden. De tuin is geheel omsloten en bereikbaar via een achterom, wat privacy én gemak biedt.

    De grote, verwarmde garage met elektrische deur maakt het plaatje compleet. Hier is volop ruimte voor de auto, klusprojecten of extra opslag.

    Kortom: een royale woning op een bijzonder rustige locatie, met alle dagelijkse voorzieningen vlakbij én met alle potentie om te worden omgetoverd tot een modern thuis dat volledig past bij uw wensen.

    Bijzonderheden:
    – Royale twee-onder-een-kapwoning met aangebouwde grote garage en berging
    – Altijd met zeer veel zorg gewoond, maar een moderniseringsupdate is wenselijk
    – Gezellige woonkamer met open keuken
    – Keuken met licht keukenmeubel en 4-pits gaskookplaat, oven, afzuigkap en koel-/vriescombinatie
    – Wasruimte/bijkeuken met aansluitingen witgoed
    – Drie slaapkamers op de eerste verdieping
    – Badkamer met ligbad, toilet en wastafel
    – Slaapkamer op de tweede verdieping
    – Grote garage met elektrische deur, elektra en verwarming
    – Royale achtertuin op het westen met terras, plantenborders en gras

    Locatie:
    – Gelegen in een rustige woonwijk op korte afstand van scholen, winkels en uitvalswegen
    – Oss is een middelgrote stad
    – De stad heeft een rijk verenigingsleven en moderne sportaccommodaties
    – In Oss vindt u alles wat hoort bij een middelgrote stad: bioscoop, theater, basisscholen, voortgezet onderwijs, winkelcentra etc.
    – Voor het openbaar vervoer kunt u gebruik maken van busverbindingen of een van de twee NS-stations
    – Op korte afstand van snelwegen, met een goede verbinding naar Eindhoven, ’s-Hertogenbosch en Nijmegen
    – Op het gebied van cultuur biedt Oss een zeer royaal aanbod met theater “De Lievekamp”, cultuurpodium “De Groene Engel” en het Centrum voor Kunsten Muzelinck
    – Ook diverse festivals en evenementen maken Oss tot een zeer plezierige stad om te wonen

    Documenten

    Selecteer onderstaande documenten om ze te downloaden

    Neem contact met ons op

    Wij staan telefonisch, per e-mail en per WhatsApp voor je klaar.

    • Dit veld is bedoeld voor validatiedoeleinden en moet niet worden gewijzigd.
    • Door het formulier te gebruiken ga je akkoord met de verwerking van je persoonsgegevens volgens onze privacyverklaring

    Blijf op de hoogte van nieuwe woningen

    Vrijblijvende waardebepaling

    Heeft u verhuisplannen en wilt u graag de (over)waarde van uw woning weten?
    Nodig Akker Makelaardij uit voor een gratis waardebepaling.

    Meer informatie